建物性能やメンテナンス性、保証内容を大切に考えられていたご夫婦。
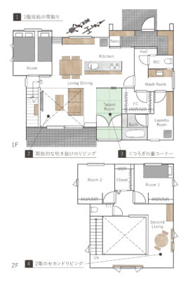
当初は平屋をご検討されていましたが、日々の暮らしやすさと空間のゆとりを重視する中で、最終的に心をつかんだのは、1階をメインに暮らす2階建てのプランでした。
ご家族のライフスタイルに寄り添いながら、お好みのテイストを随所に反映した、こだわりの住まい。
重厚感のある外観に、ナチュラルで温かみのある内装が調和し、落ち着きと上質さを兼ね備えた空間に仕上がっています。
玄関には「SOLIDO」をアクセントとして採用し、住まいの第一印象を印象的に演出。
キッチン腰壁は門型とし、アカシアのランダム貼りパネルをあしらうことで、空間に個性と奥行きをプラスしました。
住まいづくりの決め手となったのは、安心の長期優良住宅という確かな性能に加え、デザイン性と機能性を両立した提案力。
I様、このたびは撮影にご協力いただき、誠にありがとうございました。
長期優良住宅、高気密高断熱(C値0.22)、太陽光発電システム搭載
■ 床材
1階:・ikuta 銘木フロアラスティック(ナラ樫 2P・12mm)・キッチン床:塩ビタイル・畳コーナー:ダイケン 健やかおもて畳(銀鼠色・縁無し半帖)
2階:・ikuta 銘木フロアラスティック(ナラ樫 2P・12mm)
■ 建材・内装・建具:パナソニック 07524 LK 開きドア ブラックオーク 取っ手真鍮・巾木:パナソニック イデアオーク・壁・天井:ビニールクロス(SP-9732 ほか)
■ キッチン・腰壁:門型D300 FL=+1000 SC集成(ブラック色)・門型の中:デコアカシア貼り




対応エリア
Area
上記以外の市町村でも対応可能な地域、また上記であっても対応が困難な地域がございます。
希望される地域が対応可能かどうかお調べすることも可能ですので、お気軽にお問い合わせください。
30周年記念キャンペーン開催中!
※詳しくはお電話またはフォームよりご連絡ください。
